Unit 1A/182 Star Street, Carlisle WA

Overview

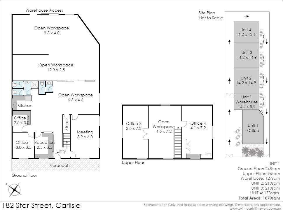
Unit 1A/182 Star Street, Carlisle WA

  • 96 sqm
  • 2

First Floor Office Sub-Lease with area on 96 square metres.

Amenities will be shared with the Tenant of Unit 1 and two car bays will be provided.

The rent is $24,000 + GST (which includes Outgoings).

The Office is located within 600 metres of Orrong Road and 1.7km of Welshpool Road.

Floor Area
96 sqm
Car Spaces
2
Address
182 Star Street
Suburb
Carlisle

Gallery

Take a look around the property

Enquire

"*" indicates required fields

Name
Newsletter

Location

Carlisle

Carlisle offers excellent opportunities for commercial real estate ventures. Its prime location, just 6 kilometres southeast of Perth’s central business district, makes it highly accessible and well-connected to major transportation routes like the Great Eastern Highway and Graham Farmer Freeway.

Carlisle benefits from a diverse mix of residential, commercial, and industrial areas, creating a vibrant and active local economy. The suburb enjoys a growing population and a steady influx of businesses, providing a solid customer base for commercial enterprises. Furthermore, Carlisle’s proximity to the city centre and its ongoing development and revitalization efforts make it an attractive destination for commercial real estate investments with the potential for long-term growth.

Similar Properties

You may also be interested in

see all properties